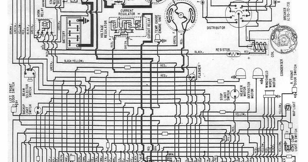
1956 Chrysler Wiring Diagram
It covers body, chassis, mechanical and electrical. Master tech service film library;
Chrysler wiring diagrams are designed to provide information regarding the vehicles wiring content.

1956 chrysler wiring diagram. Each part should be placed and connected with different parts in specific manner. Wrg 5324 1956 chrysler wiring diagram. 11 x 17 are shipped in flat envelope.
Chevy silverado tail light wiring diagram wiring diagram for bulkhead lights 2019 2005 chevy silverado tail light wiring diagram unique lovely trailer 1g. All wiring diagrams posted on the site are collected from free sources and are intended solely for informational purposes. 1953 chrysler v8 & model c59 v8 (12 volt system)0001:
1954 chrysler v8 all mod.wiring diagrams0001: 1956 chrysler & imperial full line body, chassis & electrical service manual cd [eb3504n] this cd is a replica of the factory manual. 1956 chrysler wiring diagram find great deals on ebay for motor wiring diagrams shop with confidence see more like this wiring diagrams 1956 1989 outboard motor and inboard outdrive professional motor wiring diagram manual 1990 chrysler jeep eagle ford products pre owned £11 49 £17 73 postage, playapk co wiring diagrams factory to
18 x 24 are shipped in a tube. This cd includes wiring diagrams. Premium color wiring diagrams get premium wiring diagrams that are available for your vehicle that are accessible online right now, purchase full set of complete wiring diagrams so you can have full online access to everything you need including premium wiring diagrams, fuse and component locations, repair information, factory recall information and even tsb's (technical.
The new yorker gained a new mesh grille, leather seats, pushbutton powerflite selector, and a 354 cubic inch hemi v8 with 280 horsepower. 1955 chrysler & imperial : 1954 chrysler six wiring diagrams0001:
1956 chrysler & imperial wiring diagram0001 It was a six cylinder with hydraulic brakes. The wiring is correct but the drawing of the back side of the ignition switch for the 1955 on page 18 and the 1956 on page 57 is not correct.
Diagrams available in 11x17 or 18x24. Chrysler christened the 1956 model year’s design “powerstyle,” a product of prolific chrysler designer virgil exner. Complete basic car included (engine bay,.
If the diagram you're looking for isn't in the list, please contact us to see if it's a diagram we can supply. The first car produced by chrysler was in 1924. Chrysler offered it, and this guide tells you all about it, from electrical circuit wiring diagram to the exploded view diagram showing all the pieces.
Regis 1956 chrysler new yorker series c72 town & country wagon There are no comments to display. Complete basic car included (engine bay, interior and exterior lights, under dash harness, starter and ignition circuits, instrumentation, etc) original factory wire colors including tracers when applicable large size, clear text, easy to read laminated for ease of use.
1946 1947 1948 chrysler color wiring diagram. The hemi v8 engine produced 250 horsepower. 1933 chrysler ct color wiring diagram.
Diagrams are mailed separately from wiring kits and are sent usps 3 day first class. Ground) switch all bulbs, keep the 6 volt starter, throw away the dual points and buy a 12 volt petronics pick up, get a nice fm cd player and enjoy ! There are sections on suspension, driveline/axle, brakes, engine, transmission, body, accessories, etc.
A wiring diagram is a kind of. Marine wiring systems can be very confusing, and without the right schematics, a headache to sort out. It shows the post for the start wire (red/blue) #32 on the outer circumference of the switch with the other three post.
Electrical wiring diagram 1950 chrysler windsor. Wiring diagram & electrical library; Chrysler/force, evinrude/johnson, mariner, mercury, suzuki, tohatsu, yamaha.
This manual contains all the information necessary to work on it. Box 14 clarkston, mi 48347 u.s.a. (you can get your 55 generator rewound to 12 volts if you want to)
My advice to you is to buy a 12 volt battery and install a 1956 chrysler generator, (neg. Select your vehicle from the list above. 2008 chrysler pacifica owners manual.
Chrysler corporation wiring diagrams from 1955 to 1975 are bundled in.zip files by model years to make it easier to find your exact diagram. Chrysler standard and specific fault codes dtc. To assist you in reading these electrical diagrams, please have a look the wiring diagram symbol legend.
Chrysler was founded in 1923.

2004 Chrysler PT Cruiser Electrical Wiring Diagrams Shop Service Manual

CHRYSLER Car PDF Manual, Wiring Diagram & Fault Codes DTC
Viewing a thread 1956 Imperial AC (Chrysler & DeSoto too)

Chrysler Wiring Diagram, Fully Laminated Poster Electrify Your Ride
1948 Pilothouse no power Mopar Flathead Truck Forum and
[DIAGRAM] 1975 Dodge Valiant Wiring Diagram Schematic FULL Version HD Quality Diagram Schematic
Plymouth Fury Wiring Diagram Wiring Diagram
1956 Cadillac Steering Diagram Wiring Schematic wiring diagram DB

Free Auto Wiring Diagram 1957 Oldsmobile Wiring Diagram For All Models

1956 Dodge Pickup Truck Wiring Diagram schematic and wiring diagram

Wiring Diagram For 1966 Plymouth Valiant schematic and wiring diagram

Electrical Wiring Diagrams Of 1956 Chrysler And Imperial All about Wiring Diagrams

Мануалы Chrysler Мануалы на автомобили PDF, коды ошибок

Мануалы Chrysler Мануалы на автомобили PDF, коды ошибок
1956 Cadillac Steering Diagram Wiring Schematic wiring diagram DB

Wiring for 195051 Mercury Car Wiring Pinterest Mercury cars and Cars
318 V8 Engine Diagram Wiring Diagram Networks

